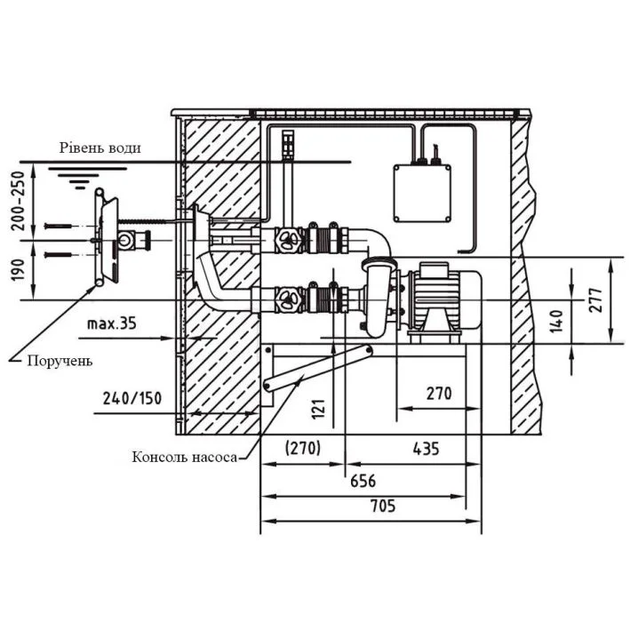
Протитечія Fitstar Taifun 7626021 без з'єднувальних елементів (63 м3/год, 380 В), для солоної води
Доставка
* У разі оформлення замовлення в робочий день до 13:00, ми надішлемо його цього ж дня. Зазвичай посилку можна отримати вже наступного дня.
Замовлення, оформлені після 13:00, відправляються наступного робочого дня. Але ми докладаємо максимум зусиль, щоб відправити його в той же день.
Замовлення, оформлені у вихідні та святкові дні, відправляються в найближчий робочий день.
Номер ТТН ми надішлемо після 20:00, коли замовлення буде повністю зібране та передане службі доставки.
